Scandinavian-inspired Modern Log Home Remodel

Three Rivers, Oregon.

Located 30 minutes south of Bend, Oregon in Three Rivers, under the shade of 200-foot tall ponderosa pines and along the west bank of the Deschutes River, lies Life Design Build’s first log home remodel.

The owners - a recently retired couple from Beaverton, Oregon had found this log home gem a few years prior and initially maintained it as a vacation rental, but knew it was were they wanted start their next chapter after wrapping up their careers.

Drawn to the serene beauty of the property along the Deschutes River, the quiet setting in Three Rivers, and the rustic charm of the log-home construction, the owner’s knew they had found the bones of their dream fly fishing retreat/home. That said, the finishes were outdated, the interior lacked natural daylight, the ubiquitous honey-colored log interior and exterior was overwhelming for the owner, the kitchen lacked sufficient storage, and the entry into the house was abrupt with no transitional space.

Life Design Build collaborated with the owner to tastefully modernize the home with bold Scandinavian-inspired colors and simple forms, while at the same time embracing and paying homage to the rural and rustic western roots of the log home and property. Working on a fixed Phase 1 budget, the design team focus on the communal spaces and exterior of the home with hopes of updating the private/bedroom spaces down the road as a part of a Phase 2 remodel. In the end, we overhauled the exterior, entire kitchen, dining and living room, while adding new spaces, including a new entry/foyer, scullary/pantry and an enlarged River-viewing sitting area off of the dining space.

Before

After

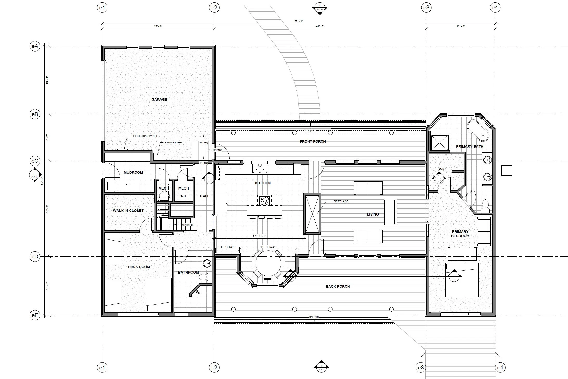
Drawings - Existing

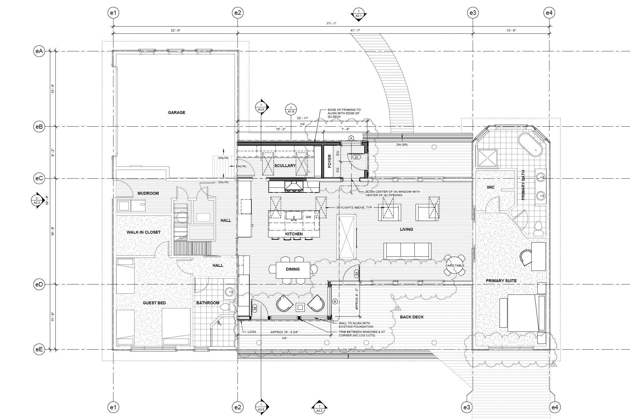
Drawings - New

Project Team

Architect: Tyson Gillard, Licensed Architect + General Contractor

Lead Designer: Sarah Pierce

Construction Project Manager: TJ Boatright

Site Superintendent: Shadric Dowden

Lead Carpenter (Framing): Brandon Fulton

Lead Carpenter (Finish): Kelik Summer

Carpenter: Nicholas Davidsion

Carpenter: Jason Novo

Carpenter: Tory Vaca

Carpenter: Pat Diamond

Carpenter: Bailey Demaris