West Hills Modern Kitchen Remodel

Bend, Oregon.

The West Hills Kitchen Remodel was perhaps one of our most fun and in-depth kitchen remodels to-date. The owner, a passionate cook and host had waited much of her life for her “dream” kitchen, which had been, and would be the heart of her home where family and friends would gather. Finally, the time had come to embark on the comprehensive overhaul of the kitchen and they looked to Life Design Build to help them turn their needs and desires into a functional a beautiful reality.

Taking on the task, a few key objectives guided the design:

  • Provide significantly more counter space and storage (most specifically for pantry and misc. appliances).

  • Provide dedicated coffee and drink/cocktail station with additional wine storage.

  • Bring abundant natural daylight into the space.

  • Create better visual connection to the backyard/deck.

  • Switch to all electric appliances.

  • Incorporate and embrace fun and playful colors while simplifying the material palette in the house.

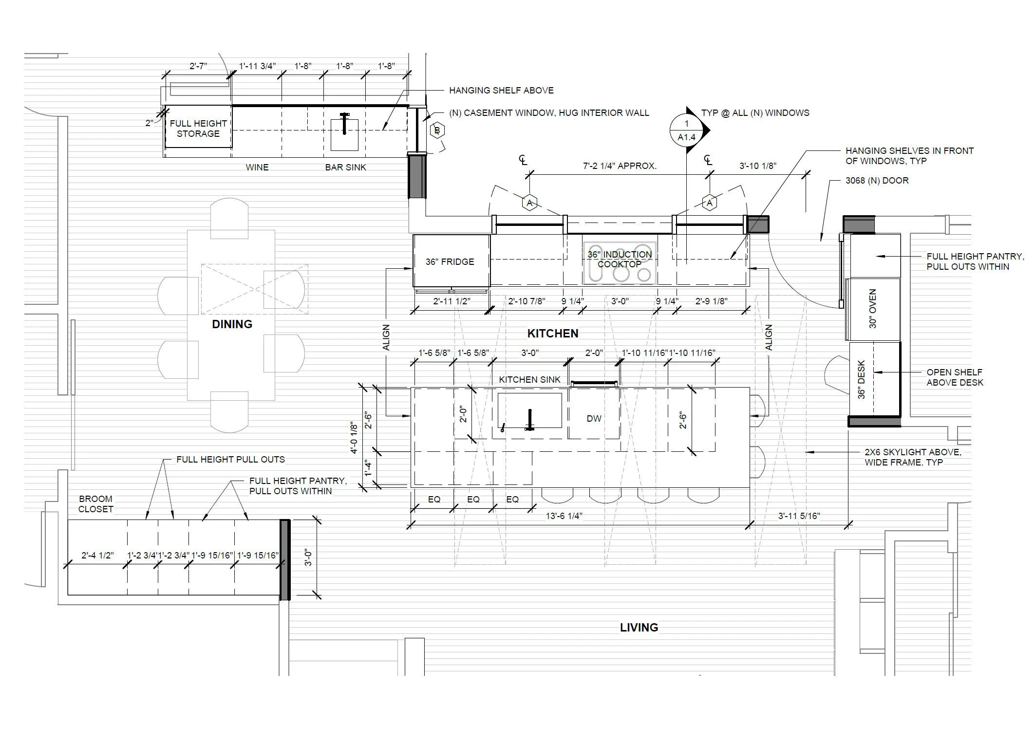
In the end, the Life Design Build design team was able to create 43% more counter space (84 sf total vs. 58 sf originally), and 113% more storage volume (502 cu. ft. total vs. 235 originally). Three 2×6’ skylights, three full height (counter to ceiling) windows, and a new full lite door create a space flooded with natural daylight - and, with clear-coat refinished floors (broad plank salvaged ponderosa pine) the entire great room became lighter and brighter. Additionally, the custom hanging shelves provided storage/display space, while still allowing daylight and views to pass through them. Playful aquamarine tile selected by the owner for all of the accent/recessed spaces became the driver for establishing a color scheme, and the great room’s existing and dominant maple built-in/media console became the driver for the newly introduced wood elements. And finally, some of the owner’s existing walnut furniture, provided inspiration and a contrasting tone for additional furniture and accents, including the light pendents (which also feature local lava rock inspired stone).

Before

After

Drawings

Project Team

Architect: Tyson Gillard, Licensed Architect + General Contractor

Lead Designer: Sarah Pierce

Detailed Interior Design: Kate Jensen

Construction Project Manager: Brent Edens

Lead Carpenter (Finish):Kelik Summer

Carpenter: Bailey Demaris